歡迎訪問江蘇撸撸在线视频環保節能科技有限公司官方網站!
江蘇撸撸在线视频環保節能科技有限公司
電話:13851926016 胡經理
座機:025-57031166
地址:江蘇省南京市棲霞區靖安開發區永隆橋1號
郵箱:446145111@qq.com






| 序號 | 類別 | AAO+HBAF池+濾布濾池 | AAO池+MBR | |
| 1 | 處理效率 | 出水水質 | 較好 | 一般 |
| 2 | 處理效率 | 水質保證能力 | 穩定達標一級A | 可以穩定達標一級B,不能確保達到一級A |
| 3 | 穩定性 |
耐衝擊負荷能力 (水質、水量) |
強,二次啟動速度快,適用於斷 斷續續進水工況 |
較強,膜需連續運行,不宜斷斷續 續進水,影響膜壽命 |
| 4 | 穩定性 | 低溫的影響 | 水溫波動小,低溫運行較穩定 |
處理效果受低溫影響較大;水溫低 MBR膜通量相對降低 |
| 5 | 經濟性 | 占地麵積 | 占地較小 | 占地較小 |
| 6 | 經濟性 | 使用壽命 |
長,HBAF填料無需更換,5-7 年後每年補充率不超過3% |
短,MBR膜使用壽命3-5年需要更 換,需要增加二次投資 |
| 7 | 經濟性 | 工程建設直接費 | 5000-6000元/噸水。 | 8000-10000元/噸水。 |
| 8 | 運行要求 | 專業度 |
設備較簡單,操作簡單,技術要 求低,專業度要求低 |
設備較複雜,操作複雜, 技術要求高,需專業工程師管理 |




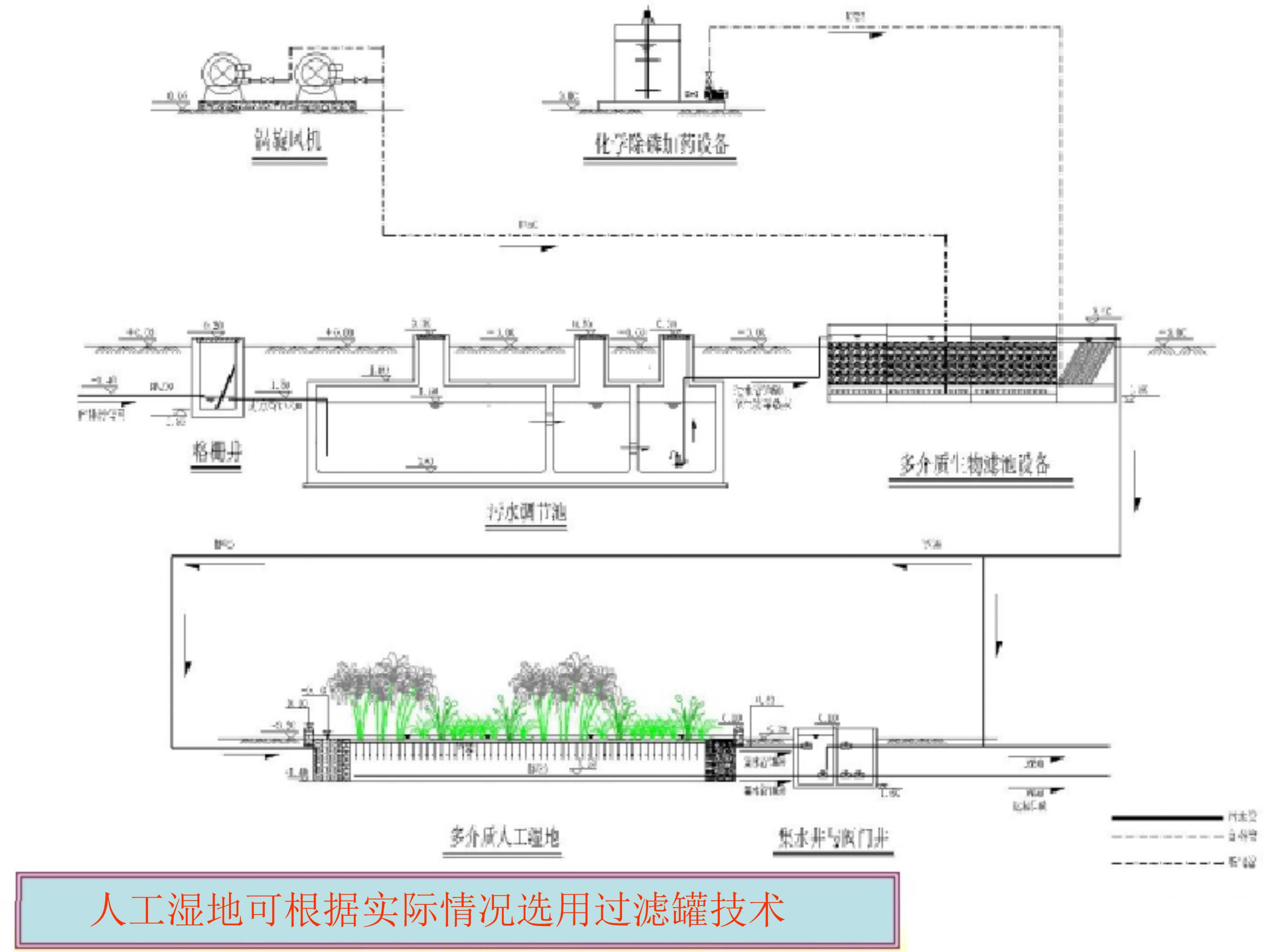
| 工藝類型 | 活性汙泥法 | 接觸氧化 | MBR | 多介質生物濾池 | 人工濕地 |
| 出水水質 | 一般 | 一般 | 很好 | 好 | 好 |
| 運行維護需求 | 日常維護 | 日常維護 | 維護較複雜 | 定期維護 | 低 |
| 設備投資 | 中 | 中 | 高 | 中 | 低 |
| 運行費用 | 高 | 較高 | 高 | 較低 | 低 |
| 低溫適應性 | 較好 | 好 | 很好 | 很好 | 差 |
| 占地麵積 | 較大 | 較小 | 小 | 小 | 較大 |
| 更換填料頻率 | 無 | 3年 | 3年 | 8~10年 | 5-8年 |
| 排泥周期 | 經常 | 經常 | 12月 | 12-24月 | 原位再生 |
| 序號 |
日處理 水量(噸 ) |
標準戶 數(戶) |
標準人 口數 (人) |
建議調節 池規格 (噸) |
多介質生物濾池標準 3 尺寸(容積/m ) |
深層布水多介質人 2 工濕地 (麵積/m ) |
備注 (PBR型號) |
||
| 序號 |
日處理 水量(噸 ) |
標準戶 數(戶) |
標準人 口數 (人) |
建議調節 池規格 (噸) |
A、D槽 | B、C槽 | 標準 | 最小 |
備注 (PBR型號) |
| 1 | 10 | 20 | 70 | 7 | 1.20 | 2.06 | 25 | 20 | JR-G10 |
| 2 | 20 | 40 | 140 | 12 | 2.00 | 4.00 | 50 | 40 | JR-G20 |
| 3 | 50 | 100 | 350 | 30 | 4.00 | 7.30 | 125 | 100 | JR-G50 |
| 4 | 80 | 160 | 560 | 45 | 4.80 | 8.50 | 200 | 160 | JR-G80 |
| 5 | 100 | 200 | 700 | 50 | 6.80 | 11.50 | 250 | 200 | JR-G100 |
| 6 | 150 | 300 | 1050 | 60 | 7.80 | 13.50 | 375 | 300 | JR-G150 |
| 7 | 200 | 400 | 1400 | 70 | 8.80 | 16.00 | 500 | 400 | JR-G200 |
| 8 | 散戶 | 1-2 | 無動力淨化槽 | ||||||
| 9 | 散戶 | 3-5 | 無動力淨化槽 | ||||||